Set the Project Scale in Togal.AI
Togal.AI
|
With Togal.AI, set the project scale that is correct for the drawing. Here’s how:
Table of Contents
- Set the Project Scale
- Check the Accuracy
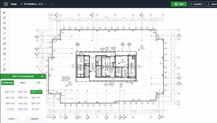
Set the Project Scale in Togal.AI
On the drawing page, select “scale” at the bottom left corner.

Select the scale type that is correct for the drawing.

An additional option is to calibrate the scale or create a custom scale.

For this drawing, the architectural scale is 3/32’= 1’0”.

Check the Accuracy
Close the scale window and select the measure tool by clicking on the “measure” icon or by pressing “D” on the keyboard.

To check if the dimensions are correct, click at the point to start measuring. Next, select the end-point of the measurement.

The measurement will show 15’0” if the scale is correctly calibrated for the drawing.

This tutorial showed how to set the scale for a drawing in Togal.AI. To learn more about how Togal.AI can integrate with your workflow, request a demo.
Learn How to Use Other Togal.AI Features with These Tutorials
- Create New Projects and Upload Drawings to Togal.AI
- Creating Classifications with Togal.AI
- Automatically Name Drawings in Togal.AI
- How To Compare Drawings in Togal.AI
- How to Classify Walls In Togal.AI
- How To Import Drawings From Procore
- Exporting Quantities and Takeoffs From Togal.AI
- Improve the Precon Workflow Using the Editing Tools in Togal.AI
- Auto-Classify Areas Using the Automatic Classification Feature Within Togal.AI
- Set Project Quantities Using the Quantities Panel in Togal.AI
- How To Create Classification Groups With Togal.AI
- With Togal, Classify Different Items of Your Project
- How to Create Areas, Lines, and Counts
